Available Homes for Lease
There are currently no homes available for lease. Please check back soon or call 217-442-3266 to learn if anything is becoming available.
-HPI Management
Recently Leased Units
1203 Saratoga Dr.
3 Bedroom Home
421 N Gilbert
3 Bedroom Home
1113 James Place
3 Bedroom Home
1205 James Pl.
3 Bedroom Home
1113 Lorraine St.
3 Bedroom Home
1109 Lorraine St.
3 Bedroom Home
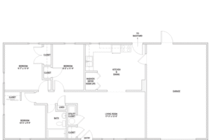
PROPERTY DETAILS
421 N. Gilbert St.
NON-SMOKING HOME 
This property has been operated as “Images Framing & Fine Art” for the past 20 years in this location.
Living quarters reflect Ornate wood work, refinished hard wood floors.
Available for residential or commercial occupancy Illinois Department of Transportation reflects daily traffic count of 18,500 cars per day.
Parking in back for 8 cars. Living space Aprox 1250 sq ft, plus a large attic area. 7 individual rooms/interconnected spaces.
- 1st floor 850 sq ft | 2nd floor 400 sq ft
Property has gas forced heat and air, upstairs bedrooms are assisted with window AC units.
Improvements before rental will include:
- New incoming water line
- New Drain and Supply lines
- Refinished hard wood floors on main level
- New kitchen cabinets, counter top, and vinyl plank in the kitchen
- Laundry hook up Detailed bathroom
Contact us to schedule your appointment today or begin with filling out and submitting our tenant application, and we will begin to help you secure your residence.
421 N. Gilbert Pricing
| House Size | Rental Rates |
|---|---|
| 3 Bedroom: | $995 |
Video / Location
Utilities
| Type of Utility | Billed by Heartland | Billed by Utility |
|---|---|---|
| Sewer, Sanitary and Trash: | – | $94.50/mo |
Water – Aqua Illinois: 877-987-2782
Internet/Cable – Comcast: 800-934-6489
Amenities
| No Smoking Home: | ![]() |
| Bedrooms: | 3 |
| Baths: | 1 |
| Deadbolts: | Yes |
| Window Blinds Provided: | Yes |
| Garage: | 2 car |
| Garage Door Openers: | Yes |
| Central AC: | Yes |
| Ceiling Fans: | Yes |
| Laundry Hook-Ups: | Yes |
| Cable Ready: | Yes |
| Satellite: | ![]() |
1108 James Place
NON-SMOKING COMPLEX
Beautifully renovated 3 bedroom, 1 bath ranch style home. Freshly painted, with newer eat in kitchen, laundry hook up and ceiling fans, gas forced air furnace, central air, newer windows, new cabinets, new carpet, new countertops, new tile, and 1 car attached garage. Convenient location to elementary school, with easy access to busline and shopping.
Contact us to schedule your appointment today or begin with filling out and submitting our tenant application, and we will begin to help you secure your residence.
1108 James Pricing
| House Size | Rental Rates |
|---|---|
| 3 Bed | $1,125 |
Video / Location
Utilities
| Type of Utility | Billed by Heartland | Billed by Utility |
|---|---|---|
| Danville Sanitary District: | $10.75/mo | – |
| Danville Sewer/Public Safety Fee: | $57.75/mo | – |
| Solid Waste Disposal: | $26.00/mo | |
| Ameren IP – Electric: | – | Tenant Expense |
Water – Aqua Illinois: 877-987-2782
Internet/Cable – Comcast: 800-934-6489
Amenities
| No Smoking Complex: | ![]() |
| Bedrooms:: | 3 |
| Baths: | 1 |
| Fenced in Back Yard: | Yes |
| Deadbolts: | Yes |
| Screen Doors: | Yes |
| Window Blinds Provided: | Yes |
| Dishwasher: | Yes |
| Off Street Parking: | 1 Car Attached |
| Garage Door Openers: | Yes |
| Central AC: | Yes |
| Ceiling Fans: | Yes |
| Laundry Hook-Ups: | Yes |
| Cable Ready: | Yes |
| Satellite: | ![]() |
1109 Lorraine St.
NON-SMOKING COMPLEX
Beautifully renovated 3 bedroom, 1 bath ranch style home. Recently painted, new carpet with newer eat in kitchen, laundry hook up and ceiling fans, gas forced air furnace, newer windows, and 1 car attached garage. Convenient location to elementary school, with easy access to busline and shopping.
Contact us to schedule your appointment today or begin with filling out and submitting our tenant application, and we will begin to help you secure your residence.
1109 Lorraine Pricing
| House Size | Rental Rates |
|---|---|
| 3 Bed | $1,125 |
Location
Utilities
| Type of Utility | Billed by Heartland | Billed by Utility |
|---|---|---|
| Danville Sanitary District: | $10.75/mo | – |
| Danville Sewer/Public Safety Fee: | $57.75/mo | – |
| Solid Waste Disposal: | $26.00/mo | |
| Ameren IP – Electric: | – | Tenant Expense |
Water – Aqua Illinois: 877-987-2782
Internet/Cable – Comcast: 800-934-6489
Amenities
| No Smoking Complex: | ![]() |
| Bedrooms:: | 3 |
| Baths: | 1 |
| Fenced in Back Yard: | Yes |
| Deadbolts: | Yes |
| Screen Doors: | Yes |
| Window Blinds Provided: | Yes |
| Dishwasher: | Yes |
| Off Street Parking: | 1 Car Detached |
| Garage Door Openers: | Yes |
| Central AC: | Yes |
| Ceiling Fans: | Yes |
| Laundry Hook-Ups: | Yes |
| Cable Ready: | Yes |
| Satellite: | ![]() |
1113 James Pl.
NON-SMOKING COMPLEX
Beautifully 3 bedroom under renovation, 1 bath ranch style home. Freshly painted with new carpet, and a 2 car attached garage. More details coming with progress of renovation. Convenient location to elementary school, with easy access to bus lines and shopping.
Contact us to schedule your appointment today or begin with filling out and submitting our tenant application, and we will begin to help you secure your residence.
1113 James Pricing
| House Size | Rental Rates |
|---|---|
| 3 Bed | $1,125 |
Location
Utilities
| Type of Utility | Billed by Heartland | Billed by Utility |
|---|---|---|
| Danville Sanitary District: | $10.75mo | – |
| Danville Sewer/Public Safety Fee: | $57.75/mo | – |
| Solid Waste Disposal: | $26.00/mo | |
| Ameren IP – Electric: | – | Tenant Expense |
Water – Aqua Illinois: 877-987-2782
Internet/Cable – Comcast: 800-934-6489
Amenities
| No Smoking Complex: | ![]() |
| Bedrooms:: | 3 |
| Baths: | 1 |
| Fenced in Back Yard: | Yes |
| Deadbolts: | Yes |
| Screen Doors: | Yes |
| Window Blinds Provided: | Yes |
| Dishwasher: | Yes |
| Off Street Parking: | 2 Car Attached |
| Garage Door Openers: | Yes |
| Central AC: | Yes |
| Ceiling Fans: | Yes |
| Laundry Hook-Ups: | Yes |
| Cable Ready: | Yes |
| Satellite: | ![]() |
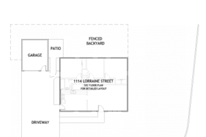
1113 Lorraine St.
NON-SMOKING COMPLEX
Beautifully 3 bedroom under renovation, 1 bath ranch style home. Freshly painted with new carpet, and a 2 car detached garage. More details coming with progress of renovation. Convenient location to elementary school, with easy access to bus lines and shopping.
Contact us to schedule your appointment today or begin with filling out and submitting our tenant application, and we will begin to help you secure your residence.
1113 Lorraine Pricing
| House Size | Rental Rates |
|---|---|
| 3 Bed | $1,125 |
Location
Utilities
| Type of Utility | Billed by Heartland | Billed by Utility |
|---|---|---|
| Danville Sanitary District: | $10.75/mo | – |
| Danville Sewer/Public Safety Fee: | $57.75/mo | – |
| Solid Waste Disposal: | $26.000/mo | |
| Ameren IP – Electric: | – | Tenant Expense |
Water – Aqua Illinois: 877-987-2782
Internet/Cable – Comcast: 800-934-6489
Amenities
| No Smoking Complex: | ![]() |
| Bedrooms:: | 3 |
| Baths: | 1 |
| Fenced in Back Yard: | Yes |
| Deadbolts: | Yes |
| Screen Doors: | Yes |
| Window Blinds Provided: | Yes |
| Dishwasher: | Yes |
| Off Street Parking: | 2 Car Detached |
| Garage Door Openers: | Yes |
| Central AC: | Yes |
| Ceiling Fans: | Yes |
| Laundry Hook-Ups: | Yes |
| Cable Ready: | Yes |
| Satellite: | ![]() |
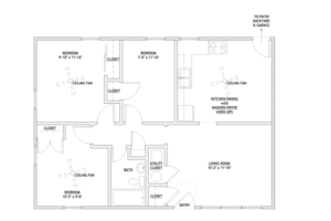
1114 Lorraine St.
NON-SMOKING COMPLEX
Beautifully renovated 3 bedroom, 1 bath ranch style home. Freshly painted with newer eat in kitchen, laundry hook up, ceiling fans, gas forced air furnace, newer windows, and a 1 1/2 car detached garage. Convenient location to elementary school, with easy access to bus lines and shopping.
Contact us to schedule your appointment today or begin with filling out and submitting our tenant application, and we will begin to help you secure your residence.
1114 Lorraire Pricing
| House Size | Rental Rates |
|---|---|
| 3 Bed | $1,125 |
Location
Utilities
| Type of Utility | Billed by Heartland | Billed by Utility |
|---|---|---|
| Danville Sanitary District: | $10.75/mo | – |
| Danville Sewer/Public Safety Fee: | $57.75/mo | – |
| Solid Waste Disposal: | $26.00/mo | |
| Ameren IP – Electric: | – | Tenant Expense |
Water – Aqua Illinois: 877-987-2782
Internet/Cable – Comcast: 800-934-6489
Amenities
| No Smoking Complex: | ![]() |
| Bedrooms:: | 3 |
| Baths: | 1 |
| Fenced in Back Yard: | Yes |
| Deadbolts: | Yes |
| Screen Doors: | Yes |
| Window Blinds Provided: | Yes |
| Dishwasher: | Yes |
| Off Street Parking: | 1 1/2 Car Detached |
| Garage Door Openers: | Yes |
| Central AC: | Yes |
| Ceiling Fans: | Yes |
| Laundry Hook-Ups: | Yes |
| Cable Ready: | Yes |
| Satellite: | ![]() |
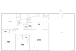
1202 James Pl.
NON-SMOKING COMPLEX
Beautifully renovated 3 bedroom, 1 bath ranch style home. Freshly painted, with newer eat in kitchen, dishwasher, breezeway, laundry hook up and ceiling fans, gas forced air furnace, central heating and air, newer windows, and 1 car detached garage. Convenient location to elementary school, with easy access to busline and shopping.
Contact us to schedule your appointment today or begin with filling out and submitting our tenant application, and we will begin to help you secure your residence.
1202 James Pricing
| House Size | Rental Rates |
|---|---|
| 3 Bed | $1,125 |
Location
Utilities
| Type of Utility | Billed by Heartland | Billed by Utility |
|---|---|---|
| Danville Sanitary District: | $10.75/mo | – |
| Danville Sewer/Public Safety Fee: | $57.75/mo | – |
| Solid Waste Disposal: | $26.00/mo | |
| Ameren IP – Electric: | – | Tenant Expense |
Water – Aqua Illinois: 877-987-2782
Internet/Cable – Comcast: 800-934-6489
Amenities
| No Smoking Complex: | ![]() |
| Bedrooms:: | 3 |
| Baths: | 1 |
| Fenced in Back Yard: | Yes |
| Deadbolts: | Yes |
| Screen Doors: | Yes |
| Window Blinds Provided: | Yes |
| Dishwasher: | Yes |
| Off Street Parking: | 1 Car Detached |
| Garage Door Openers: | Yes |
| Central AC: | Yes |
| Ceiling Fans: | Yes |
| Laundry Hook-Ups: | Yes |
| Cable Ready: | Yes |
| Satellite: | ![]() |
1203 Saratoga Dr.
NON-SMOKING HOME
Newly renovated 3 bedroom, 1 bath ranch style home. Freshly painted, with newer open concept kitchen, laundry hook up and ceiling fans, gas forced air furnace, newer windows Convenient location to elementary schools, boys and girls club and new Garfield Park pool facility, with easy access to busline and shopping.
Contact us to schedule your appointment today or begin with filling out and submitting our tenant application, and we will begin to help you secure your residence.
1203 Saratoga Pricing
| House Size | Rental Rates |
|---|---|
| 3 Bed | $995 |
Video / Location
Utilities
| Type of Utility | Billed by Heartland | Billed by Utility |
|---|---|---|
| Danville Sanitary District: | $10.75/mo | – |
| Danville Sewer/Public Safety Fee: | $57.75/mo | – |
| Solid Waste Disposal: | $26.00/mo | |
| Ameren IP – Electric/Gas: | – | Tenant Expense |
Water – Aqua Illinois: 877-987-2782
Internet/Cable – Comcast: 800-934-6489
Amenities
| No Smoking Complex: | ![]() |
| Bedrooms:: | 3 |
| Baths: | 1 |
| Partial Fenced Back Yard: | Yes |
| Deadbolts: | Yes |
| Window Blinds Provided: | Yes |
| Dishwasher: | Yes |
| Off Street Parking: | Yes |
| Central AC: | Yes |
| Ceiling Fans: | Yes |
| Stack Washer/Dryer Hook-Ups: | Yes |
| Cable Ready: | Yes |
| Satellite: | ![]() |
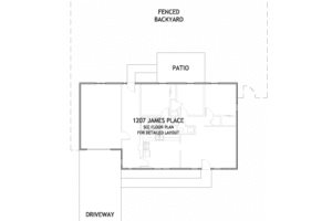
1205 James Pl.
NON-SMOKING COMPLEX
Beautifully renovated 3 bedroom, 1 bath ranch style home. Freshly painted, with newer eat in kitchen, laundry hook up and ceiling fans, gas forced air furnace/central air, newer windows, new roof (completed in October), and 1 car attached garage. Convenient location to elementary school, with easy access to busline and shopping.
Contact us to schedule your appointment today or begin with filling out and submitting our tenant application, and we will begin to help you secure your residence.
1205 James Pricing
| House Size | Rental Rates |
|---|---|
| 3 Bed | $1,125 |
Location
Utilities
| Type of Utility | Billed by Heartland | Billed by Utility |
|---|---|---|
| Danville Sanitary District: | $10.75/mo | – |
| Danville Sewer/Public Safety Fee: | $57.75/mo | – |
| Solid Waste Disposal: | $26.00/mo | |
| Ameren IP – Electric: | – | Tenant Expense |
Water – Aqua Illinois: 877-987-2782
Internet/Cable – Comcast: 800-934-6489
Amenities
| No Smoking Complex: | ![]() |
| Bedrooms:: | 3 |
| Baths: | 1 |
| Fenced in Back Yard: | Yes |
| Deadbolts: | Yes |
| Screen Doors: | Yes |
| Window Blinds Provided: | Yes |
| Dishwasher: | Yes |
| Off Street Parking: | 1 Car Attached |
| Garage Door Openers: | Yes |
| Central AC: | Yes |
| Ceiling Fans: | Yes |
| Laundry Hook-Ups: | Yes |
| Cable Ready: | Yes |
| Satellite: | ![]() |
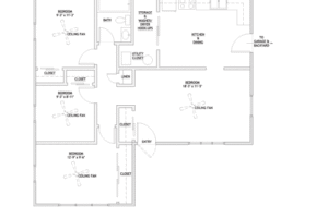
1207 James Pl.
NON-SMOKING COMPLEX
Beautifully renovated 3 bedroom, 1 bath ranch style home. Freshly painted, with newer eat in kitchen, breezeway, laundry hook up and ceiling fans, gas forced air furnace, newer windows, and 1 car attached garage. Convenient location to elementary school, with easy access to busline and shopping.
Contact us to schedule your appointment today or begin with filling out and submitting our tenant application, and we will begin to help you secure your residence.
1207 James Pricing
| House Size | Rental Rates |
|---|---|
| 3 Bed | $1,125 |
Location
Utilities
| Type of Utility | Billed by Heartland | Billed by Utility |
|---|---|---|
| Danville Sanitary District: | $10.75/mo | – |
| Danville Sewer/Public Safety Fee: | $57.75/mo | – |
| Solid Waste Disposal: | $26.00/mo | |
| Ameren IP – Electric: | – | Tenant Expense |
Water – Aqua Illinois: 877-987-2782
Internet/Cable – Comcast: 800-934-6489
Amenities
| No Smoking Complex: | ![]() |
| Bedrooms:: | 3 |
| Baths: | 1 |
| Fenced in Back Yard: | Yes |
| Deadbolts: | Yes |
| Screen Doors: | Yes |
| Window Blinds Provided: | Yes |
| Dishwasher: | Yes |
| Off Street Parking: | 1 Car Attached |
| Garage Door Openers: | Yes |
| Central AC: | Yes |
| Ceiling Fans: | Yes |
| Laundry Hook-Ups: | Yes |
| Cable Ready: | Yes |
| Satellite: | ![]() |
1210 Saratoga Dr.
NON-SMOKING HOME
Newly renovated 3 bedroom, 1 bath ranch style home. Freshly painted, with newer open concept kitchen, laundry hook up and ceiling fans, gas forced air furnace, newer windows, and 1 car attached garage. Convenient location to elementary schools, boys and girls club and new Garfield Park pool facility, with easy access to busline and shopping.
Contact us to schedule your appointment today or begin with filling out and submitting our tenant application, and we will begin to help you secure your residence.
1210 Saratoga Pricing
| House Size | Rental Rates |
|---|---|
| 3 Bed | $1,125 |
Location
Utilities
| Type of Utility | Billed by Heartland | Billed by Utility |
|---|---|---|
| Danville Sanitary District: | $10.75/mo | – |
| Danville Sewer/Public Safety Fee: | $57.75/mo | – |
| Solid Waste Disposal: | $26.00/mo | |
| Ameren IP – Electric/Gas: | – | Tenant Expense |
Water – Aqua Illinois: 877-987-2782
Internet/Cable – Comcast: 800-934-6489
Amenities
| No Smoking Complex: | ![]() |
| Bedrooms:: | 3 |
| Baths: | 1 |
| Partial Fenced Back Yard: | Yes |
| Deadbolts: | Yes |
| Window Blinds Provided: | Yes |
| Dishwasher: | Yes |
| Off Street Parking: | 1 Car Attached |
| Garage Door Openers: | Yes |
| Central AC: | Yes |
| Ceiling Fans: | Yes |
| Stack Washer/Dryer Hook-Ups: | Yes |
| EV Electric Level 2: | |
| Cable Ready: | Yes |
| Satellite: | ![]() |
1402 Edgewood
NON-SMOKING COMPLEX
Beautifully remodeled 3 bedroom home with new kitchen and expanded bath, hard wood floors, new windows and mechanicals (heat & AC), new roof with complete renovation of interior to include rough plumbing and electric. This home comes with Central Air, Dishwasher, microwave, garbage disposal, garage door opener, locking mail box, and a remodel laundry room set up for full size stack washer and dryer. Fenced side yard is great for small children. Within walking distance of North East Elementary school, shopping and city bus routes.
Contact us to schedule your appointment today or begin with filling out and submitting our tenant application, and we will begin to help you secure your residence.
1402 Edgewood Pricing
| House Size | Rental Rates |
|---|---|
| 3 Bed | $1,125 |
Video / Location
Utilities
| Type of Utility | Billed by Heartland | Billed by Utility |
|---|---|---|
| Danville Sanitary District: | $10.75/mo | – |
| Danville Sewer/Public Safety Fee: | $57.75/mo | – |
| Solid Waste Disposal: | $26.00/mo | |
| Ameren IP – Electric: | – | Tenant Expense |
Water – Aqua Illinois: 877-987-2782
Internet/Cable – Comcast: 800-934-6489
Amenities
| No Smoking Complex: | ![]() |
| Bedrooms:: | 3 |
| Baths: | 1 |
| Fenced in Back Yard: | Yes |
| Hardwood Floors: | Yes |
| Lighted Bedroom Closets: | Yes |
| Deadbolts: | Yes |
| Locking Mailbox: | Yes |
| Screen Doors: | Yes |
| Window Blinds Provided: | Yes |
| Dishwasher: | Yes |
| Off Street Parking: | 1 Car Deep Attached |
| Garage Door Openers: | Yes |
| Central AC: | Yes |
| Ceiling Fans: | Yes |
| Laundry Hook-Ups: | Yes |
| Cable Ready: | Yes |
| Satellite: | ![]() |
1422 May St.
NON-SMOKING COMPLEX
Beautiful contractor built 3 bedroom home with a 2 car garage in the Edgewood Subdivision of East Danville. This home has hardwood floors, washer/dryer hook up, newer kitchen and bath, energy efficient windows and doors, ceiling fans, central air and a fenced back yard. You will enjoy this fresh clean home with a comfortable floor plan within walking distance from North East Elementary School, shopping and I74. Contact us to schedule an appointment today.
Contact us to schedule your appointment today or begin with filling out and submitting our tenant application, and we will begin to help you secure your residence.
1422 May Pricing
| House Size | Rental Rates |
|---|---|
| 3 Bed | $1,175 |
Location
Utilities
| Type of Utility | Billed by Heartland | Billed by Utility |
|---|---|---|
| Danville Sanitary District: | $10.75/mo | – |
| Danville Sewer/Public Safety Fee: | $57.75/mo | – |
| Solid Waste Disposal: | $26.00/mo | |
| Ameren IP – Electric: | – | Tenant Expense |
Water – Aqua Illinois: 877-987-2782
Internet/Cable – Comcast: 800-934-6489
Amenities
| No Smoking Complex: | ![]() |
| Bedrooms:: | 3 |
| Baths: | 1 |
| Fenced in Back Yard: | Yes |
| Deadbolts: | Yes |
| Screen Doors: | Yes |
| Window Blinds Provided: | Yes |
| Dishwasher: | Yes |
| Off Street Parking: | 2 Car Detached |
| Garage Door Openers: | Yes |
| Central AC: | Yes |
| Ceiling Fans: | Yes |
| Laundry Hook-Ups: | Yes |
| Cable Ready: | Yes |
| Satellite: | ![]() |
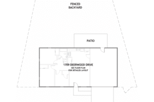
1709 Deerwood Dr.
NON-SMOKING COMPLEX
Beautifully renovated 3 bedroom 1 bath ranch style home with a wonderful living room area, eat in kitchen, laundry hook up, ceiling fans, central air / gas forced air furnace, newer windows, 2 car attached garage, and fenced back yard that would be great for your family.
Contact us to schedule your appointment today or begin with filling out and submitting our tenant application, and we will begin to help you secure your residence.
1709 Deerwood Pricing
| House Size | Rental Rates |
|---|---|
| 3 Bed | $1,095 |
Location
Utilities
| Type of Utility | Billed by Heartland | Billed by Utility |
|---|---|---|
| Danville Sanitary District: | $10.75/mo | – |
| Danville Sewer/Public Safety Fee: | $57.75/mo | – |
| Solid Waste Disposal: | $26.00/mo | |
| Ameren IP – Electric: | – | Tenant Expense |
Water – Aqua Illinois: 877-987-2782
Internet/Cable – Comcast: 800-934-6489
Amenities
| No Smoking Complex: | ![]() |
| Bedrooms:: | 3 |
| Baths: | 1 |
| Fenced in Back Yard: | Yes |
| Deadbolts: | Yes |
| Screen Doors: | Yes |
| Window Blinds Provided: | Yes |
| Dishwasher: | Yes |
| Off Street Parking: | 2 Car Attached |
| Garage Door Openers: | Yes |
| Central AC: | Yes |
| Ceiling Fans: | Yes |
| Laundry Hook-Ups: | Yes |
| Cable Ready: | Yes |
| Satellite: | ![]() |




























































